Weiter zur Navigation Weiter zum Inhalt

Stadt Memmingen:Feuerwehrhaus Eisenburg

Richtfest gefeiert

20. März 2026

Nächstes Etappenziel erreicht – Ausbau- und Installationsarbeiten im Inneren gestartet 

Fast ein Jahr nach dem Spatenstich konnte beim Neubau des Feuerwehrhauses in Eisenburg Richtfest gefeiert werden. Gemeinsam mit zahlreichen Gästen freute sich Oberbürgermeister Jan Rothenbacher bei seiner Begrüßung darüber und dankte allen Beteiligten: „Schon heute ist zu erkennen, dass mit diesem sensationellen Gebäude etwas geschaffen wird, das die Feuerwehr in Eisenburg für die nächsten Jahrzehnte sehr gut aufstellt.“ 

Beim Richtfest, an dem Vertreterinnen und Vertreter der Stadtverwaltung, des Stadtrats, der beteiligten Firmen, des Eisenburger Bürgerausschusses und der Feuerwehren Memmingen und Eisenburg teilnahmen, trugen die Zimmermänner der Firma Zettler ihren Richtspruch auf dem eingeschossigen Gebäude vor. Anschließend gab es für die Gäste die Möglichkeit, die entstehenden Räumlichkeiten im Rohbau in Augenschein zu nehmen. 

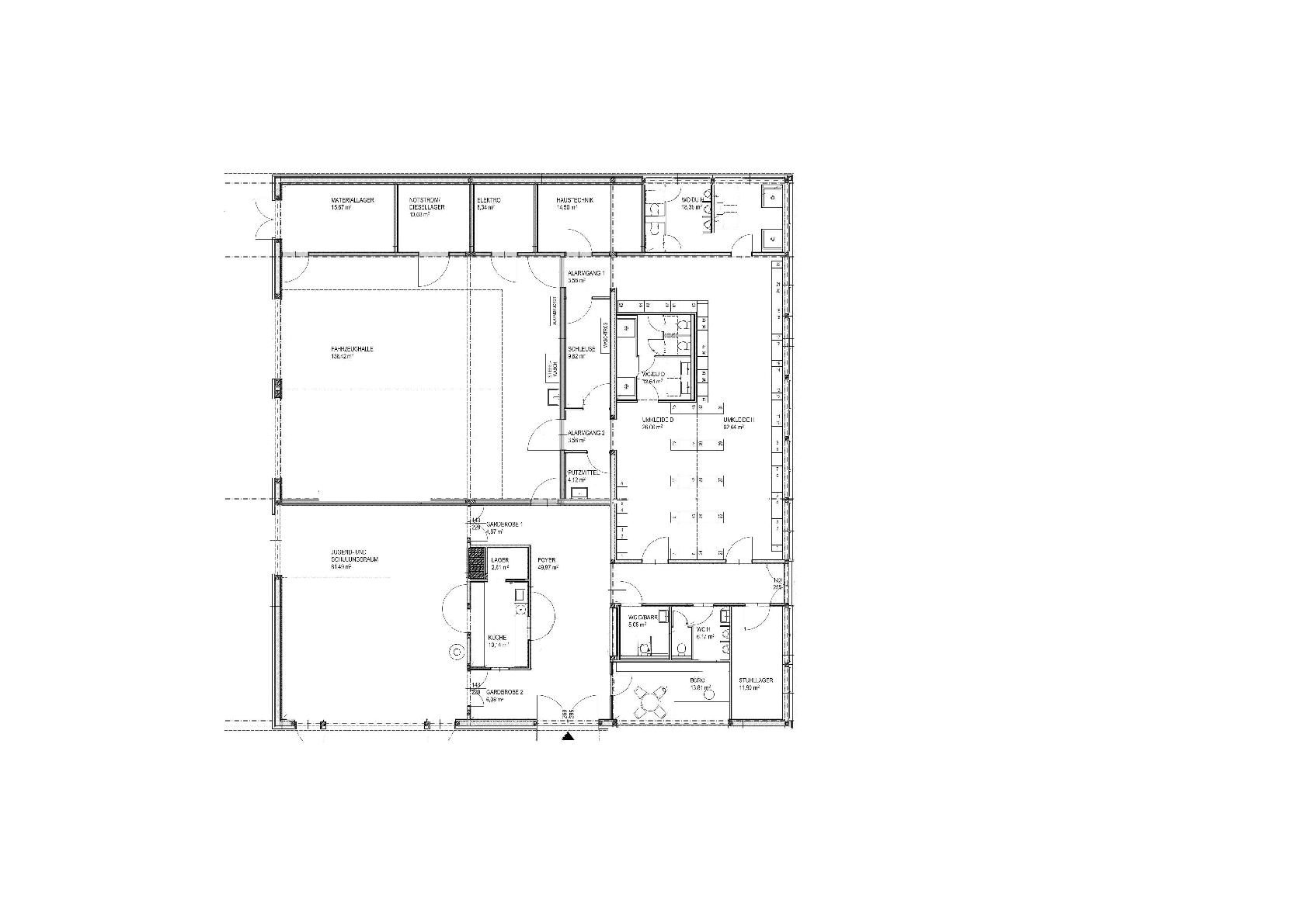
Das Raumprogramm des Neubaus mit circa 595 Quadratmetern Nutzfläche, umfasst eine Fahrzeughalle mit zwei Stellplätzen, Umkleiden- und Waschräume mit Toiletten am Alarmeingang (Geschlechter- und SW-Trennung) sowie einen Schulungsraum und einen abtrennbaren Jugendraum mit Foyer. Zudem entstehen ein Büro, eine Teeküche, ein Lager, diverse Nebenräume und barrierefreie WC-Anlagen. Im Außenbereich sind Alarmplätze, eine Alarmausfahrt und ein Übungsplatz mit weiteren Stellplätzen geplant. 

Das in gedämmter Massivholzweise errichtete Gebäude, dessen Spatenstich im April 2025 erfolgte, soll Ende 2026 fertig werden. Seit Anfang 2026 laufen die Ausbau- und Installationsarbeiten im Inneren des Gebäudes.

Die gesamte Gebäudekonstruktion einschl. Fassade wurde aus nachwachsendem und CO²-bindendem heimischen Holz aus dem Memminger Stadtwald erstellt und regional gesägt. 

Durch Infrarotheizung mit Nutzung von regenerativer Energie aus der Photovoltaikanlage wird eine wirtschaftliche und nutzungsoptimierte Wärmeversorgung gewährleistet. Durch einen Stromspeicher kann der Eigenverbrauch erhöht und der kostengünstige Betrieb gesichert werden.

Das Gebäude wird mit Gründach und Biodiversitätselementen ausgestattet. Die Außenanlagen werden naturnah gestaltet und zur Regenwasserrückhaltung wird eine Zisterne eingebaut, die für Löschwasser genutzt wird. Der Baumbestand und der begrünte Erdwall bleiben größtenteils erhalten und werden um weitere standortgerechte Neupflanzungen ergänzt.

Die Kosten des Erweiterungsbaus, der Außenanlagen und der Nebenkosten werden sich auf circa 3,7 Millionen Euro belaufen. Davon werden voraussichtlich etwa 363.000 Euro durch Fördergelder bezahlt.

Spatenstich

9. April 2025

Vor rund vier Jahren begannen die ersten Planungen für den Bau eines neuen Feuerwehrhauses in Eisenburg. Nun konnte der symbolische erste Spatenstich auf dem Gelände des ehemaligen Bolzplatzes am süd-östlichen Ortsrand gefeiert werden. „Nach Jahren der Besprechungen, Ideen, Planungen und Kalkulationen kommen wir jetzt einen riesen Schritt vorwärts und es wird ganz konkret“, erklärte Oberbürgermeister Jan Rothenbacher beim feierlichen Auftakt für die Baumaßnahme in Eisenburg. Um die Rahmenbedingungen für die rund 50 Kameradinnen und Kameraden der Feuerwehr Eisenburg zu verbessern, sei das neue Feuerwehrhaus dringend notwendig. „Wir wollen der Ortsteilfeuerwehr eine langfristige Perspektive geben. Ich freue mich sehr, dass der Bau jetzt losgeht.“

In den kommenden 18 Monaten wird ein „kompaktes, funktionales Feuerwehrhaus“ entstehen, wie Architektin Heike Schlauch (Architekturbüro raumhochrosen, Bregenz) beschrieb. „Das neue Feuerwehrhaus wird ein Meilenstein in der Geschichte der Feuerwehr Eisenburg und sicher auch ein Meilenstein für den Ort selbst“, betonte die Architektin. Das Gebäude wird in drei Bereiche gegliedert: Fahrzeughalle mit Technik, Alarmbereich mit Umkleiden und Sanitärräumen und der Schulungs- und Verwaltungsbereich. Gebaut wird ein eingeschossiger Holzbau mit vorgebauter Holzfassade, Gründächern und einer Photovoltaikanlage. „Es ist uns gelungen, dass das Holz, aus dem das Gebäude gebaut wird, aus dem Memminger Stadtwald kommt. Das ist ein Novum für Memmingen“, betonte Heike Schlauch.

Stadtbrandrat Raphael Niggl lobte die Planungen für das neue Feuerwehrhaus und dankte für den Neubau. „Ich danke der Stadt und allen Verantwortlichen, die die kommunale Aufgabe Feuerwehr ernst nehmen und trotz der klammen Kassen so ein Mammutprojekt angehen. Das ist nicht selbstverständlich“, betonte der Stadtbrandrat   

Thomas Kirchner, Kommandant der Feuerwehr Eisenburg, blickte zurück auf die ersten Überlegungen für einen Anbau an das bestehende Feuerwehrhaus in der Trunkelsberger Straße vor rund 15 Jahren. Aufgrund der beengten Grundstücksverhältnisse und der Nähe zur denkmalgeschützten Kapelle St. Nepomuk konnte eine Erweiterung nicht realisiert werden und ein Neubau wurde anvisiert. Die Feuerwehr Eisenburg freue sich auf das neue Feuerwehrhaus, das technisch auf dem neuesten Stand sein wird, bekräftigte Thomas Kirchner. Der Kommandant dankte dem städtischen Hochbauamt und dem Amt für Brand- und Katastrophenschutz sowie Architektin Heike Schlauch für die hervorragende Zusammenarbeit bei den Planungen in den vergangenen Jahren. „Es war ein harmonisches Zusammenarbeiten, einfach ein Traum. So baut man ein Feuerwehrhaus, ohne Probleme, ohne Streitereien, das war wirklich vorbildlich.“

Einen besonderen Blick auf die Jugendfeuerwehr richtete der Bürgerausschuss-Vorsitzende Raimund Rau und überreichte der Jugend eine Spende des Bürgerausschusses für die Einrichtung des Schulungsraums im neuen Feuerwehrhaus. „Macht weiter so. Im neuen Schulungsraum könnt ihr viel lernen. Für Eisenburg ist mir für die Zukunft nicht bange“, betonte Raimund Rau.

Die Baukosten für das Feuerwehrhaus Eisenburg liegen bei rund 3,7 Millionen Euro bei einer Förderung durch den Freistaat Bayern in Höhe von 360.000 Euro. Die Fertigstellung ist für Herbst 2026 geplant.

Planungen und Eckdaten

Entwurf

Das Baugrundstück liegt am süd-östlichen Ortsrand von Eisenburg und wird über eine flaschenhalsartige Einfahrt erschlossen. Dahinter weitet sich das Grundstück auf und der bestehende Lärmschutzwall auf der Nord-Westseite trennt den Bereich vom Wohngebiet.

Das Gebäude ist als kompaktes Rechteck konzipiert, die Alarm- und Besucherparkplätze sind getrennt angeordnet. Die Fahrzeughalle mit 2 Stellplätzen und dem Vorplatz liegen auf der Westseite. Über den ostseitigen Alarmeingang sind die Umkleiden direkt zu erreichen. Auf der Südseite befindet sich der vorgelagerte Freibereich und der Zugang zum Büro und Schulungsraum. Alle Räume sind über kurze Wege erreichbar, der gut zonierte Grundriss ist platzsparend und wirtschaftlich. Die kompakte Bauweise ist durch Minimierung von Oberflächen, Volumen sowie wirtschaftliche Spannweiten ressourcenschonend und effizient.

Die gesamte Gebäudekonstruktion einschl. Fassade wird aus nachwachsendem und CO²-bindendem heimischen Holz aus dem Memminger Stadtwald erstellt und regional gesägt.

Durch Infrarotheizung mit Nutzung von regenerativer Energie aus der Photovoltaikanlage wird eine wirtschaftliche und nutzungsoptimierte Wärmeversorgung gewährleistet. Durch einen Stromspeicher kann der Eigenverbrauch erhöht und der kostengünstige Betrieb gesichert werden.

Das Gebäude wird mit Gründach und Biodiversitätselementen ausgestattet. Die Außenanlagen werden naturnah gestaltet, es sind u.a. Landschaftsrasen mit Kräuter, versickerungsfähiges offenporiges Rasenfugenpflaster und begrünter Schotterrasen geplant. Zur Regenwasserrückhaltung wird eine Zisterne mit 50 m³ eingebaut, die für Löschwasser genutzt wird. Der Baumbestand und der begrünte Erdwall bleiben größtenteils erhalten und um weitere standortgerechte Neupflanzungen ergänzt.

Raumprogramm

  • Fahrzeughalle mit zwei Stellplätzen
  • Umkleide- und Waschräume mit WCs am Alarmeingang (Geschlechter-/SW-Trennung)
  • Schulungsraum und abtrennbarer Jugendraum mit Foyer
  • Büro, Teeküche und Lager
  • diverse Nebenräume und WC-Anlagen (barrierefrei)
  • Alarmparkplätze, Alarmausfahrt und Übungsplatz, weitere Stellplätze
  • Bruttogeschossfläche 595 m²
  • Bruttorauminhalt 3.000 m³

Baukosten und Zeitplan

Voraussichtliche Baukosten: rd. 3.700.000 € ; voraussichtliche Förderung durch den Freistaat Bayern: rd. 363.000 €

Geplante Fertigstellung: Herbst 2026

Chronologie und Meilensteine

  • 07/2022 Auslobung zur Abgabe von Lösungsvorschlägen für den Neubau
  • 07/2023 Auftragserteilungen Planer und Erarbeitung Vorplanung
  • 04/2024 Stadtratsbeschluss zur Weiterführung der Entwurfsplanung (Zustimmung)
  • 10/2024 Antrag auf Baugenehmigung
  • 12/2024 Bewilligungsbescheid Stellplatzförderung Regierung v. Schwaben
  • 01/2025 Baugenehmigungsbescheid
  • 02/2025 Bewilligungsbescheid Holzbauförderung Regierung v. Schwaben
  • 04/2025 Baubeginn

Historie

Die "Freiwillige Feuerwehr Eisenburg" wurde am 14. August 1887 gegründet und zählt aktuell rund 50 aktive Mitglieder. Die bestehende Feuerwache an der Trunkelsberger Straße 7 entspricht nicht den Anforderungen an eine zeitgemäße Feuerwache eines Stadtteils. Die fehlenden Flächen, u.a. geschlechtergetrennter Dusch- und Umkleidebereich, Schwarz-Weiß-Trennung, Jugendraum, Verwaltungsraum, zweiter Garagenstellplatz für ein Feuerwehrfahrzeug sowie am Haus angegliederte Alarmstellplätze können aufgrund der beengten Grundstücksverhältnisse und der Nähe zur denkmalgeschützten Kapelle St. Johann Nepomuk nicht realisiert werden.

Im Jahr 2021 wurde entschieden, dass ein Neubau auf dem Grundstück am süd-östlichen Ortsrand Eisenburgs, auf den bisherigen Grünflächen verwirklicht werden soll. Der dort bestehende Bolz- und Spielplatz wird verlegt. Es wurde eine schalltechnische Beurteilung durchgeführt, sowie ein Raumprogramm erarbeitet.

Ab Mitte 2022 wurde eine Mehrfachbeauftragung zur Erlangung von Lösungsvorschlägen durchgeführt, zu welchem drei erfahrene Architekturbüros eingeladen wurden. Die Entscheidung fiel auf das Architekturbüro „raumhochrosen“, Heike Schlauch aus Lochau (Österreich).